- Главная
- Выполненные проекты
- Строительство дома под ключ
ХАРАКТЕРИСТИКИ
• Площадь - 123 м2
ОПИСАНИЕ ПРОЕКТА
Одноэтажный жилой дом возводился “под ключ”.
На объекте фундамент -свайно-ростверковый фундамент, стены выполнены из газосиликатного блока
Перекрытия - железобетонные пустотные плиты перекрытия высотой 220мм.
Площадь кровли составляет 175 м.кв, деревянная стропильная система. Кровельное покрытие – металлочерепица.
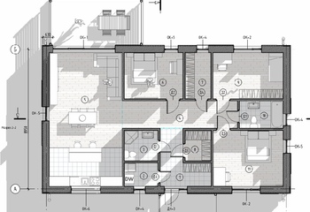
В доме размещены 3 жилых комнаты, кухня-гостиная -40,21, 2 гардеробные, прихожая – 8,25, топочная-3,24, санузел-4,26,ванная-4,96, коридор-12,99.
Дом предназначен для проживания семьи из 4-5 человек.
полный комплекс строительных услуг

Создаем проект дома, либо выбираете из готовых

Проводим геодезию участка

Возводим фундамент

Возводим стены и перекрытия

Кровельные работы

Фасадные работы

Инженерные работы

Получистовая отделка

Чистовая отделка
выглядеть ваш дом, мы знаем,
как его построить!
идеи по проектированию зданий и обустройству
участка. Мы создадим для вас настоящий дом
для жизни.