- Главная
- Выполненные проекты
- Строительство дома и бани под ключ
ХАРАКТЕРИСТИКИ
• Площадь площадь дома – 113,67 м2
• Размер дома -11,5 * 12,6
• Площадь бани – 51,54 м2
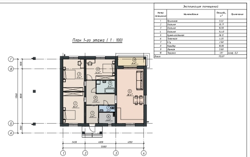
ОПИСАНИЕ ПРОЕКТА ДОМА
Одноэтажный жилой дом возводился “под ключ”.
На объекте фундамент -свайно-ростверковый фундамент, стены выполнены из газосиликатного блока
Перекрытия - междуэтажные-деревянные балки, стропильная система-деревянная.
Покрытие кровли-металлочерепица.
В доме размещены 3 жилых комнаты по 16 м2, кухня-гостиная – 36,12 м2, гардеробные, прихожая – 5,32, топочная- 4,25 м2, санузел- 2,50 м2, ванная- 5,80 м2, терраса- 1,81 м2, коридор- 10,80 м2.
Дом предназначен для проживания семьи из 3-4 человек.
ОПИСАНИЕ ПРОЕКТА БАНИ
На объекте фундамент -свайно-ростверковый фундамент, стены выполнены из газосиликатного блока
Перекрытия - междуэтажные-деревянные балки, стропильная система-деревянная.
Покрытие кровли-металлочерепица.
В бане размещены коридор- 3,60 м2, Санузел-2,80 м2, Хозблок -13,50 м2, Бассейн- 4 м2, Душевая- 4м2, Парная- 5м2, Комната отдыха – 15,18 м2, Терраса- 346м2.
полный комплекс строительных услуг

Создаем проект дома, либо выбираете из готовых

Проводим геодезию участка

Возводим фундамент

Возводим стены и перекрытия

Кровельные работы

Фасадные работы

Инженерные работы

Получистовая отделка

Чистовая отделка
выглядеть ваш дом, мы знаем,
как его построить!
идеи по проектированию зданий и обустройству
участка. Мы создадим для вас настоящий дом
для жизни.