- Главная
- Готовые проекты
- Одноэтажные дома
- Проект одноэтажного дома 031
Размер:
15,5 х 11,5
Этажность:
1
Одноэтажный дом возводился “под ключ”.
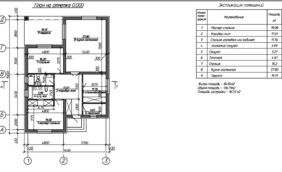
- Количество этажей – 1
- Количество жилых комнат - 3
- Жилая площадь дома – 84,84 м.кв.
- Общая площадь дома – 136,79 м.кв.
- Площадь застройки – 167,0 м.кв.
- Размер дома – 15650*11400
ОПИСАНИЕ ПРОЕКТА
Одноэтажный жилой дом возводился “под ключ”.
На объекте фундамент -свайно-ростверковый.
Перекрытие пола – бетонное основание по песчаной подушке.
Стены несущие выполнены из газосиликатных блоков толщиной 300мм.
Перегородки несущие- по деревянным балкам с утепления.
Чердачное перекрытие – по деревянным балкам с утепления.
Форма крыши шатровая.
Покрытие кровли – металлочерепица.
В доме размещена мастер-спальня – 19,08 м.кв.
Хозяйский санузел – 5,99 м.кв.
Коридор-холл – 17,01 м.кв.
Спальня гостевая или кабинет – 11,76 м.кв.
Санузел- 5,21 м.кв.
Топочная – 4,61 м.кв.
Спальня -16.1 м.кв.
Кухня-гостинная – 37,80 м.кв.
Терраса -19,13 м.кв.
Дом предназначен для проживания семьи из 3-4 человек.
полный комплекс строительных услуг
Создаем проект дома, либо выбираете из готовых
Проводим геодезию участка
Возводим фундамент
Возводим стены и перекрытия
Кровельные работы
Фасадные работы
Инженерные работы
Получистовая отделка
Чистовая отделка
выглядеть ваш дом, мы знаем,
как его построить!
идеи по проектированию зданий и обустройству
участка. Мы создадим для вас настоящий дом
для жизни.







