- Главная
- Готовые проекты
- Двухэтажные дома
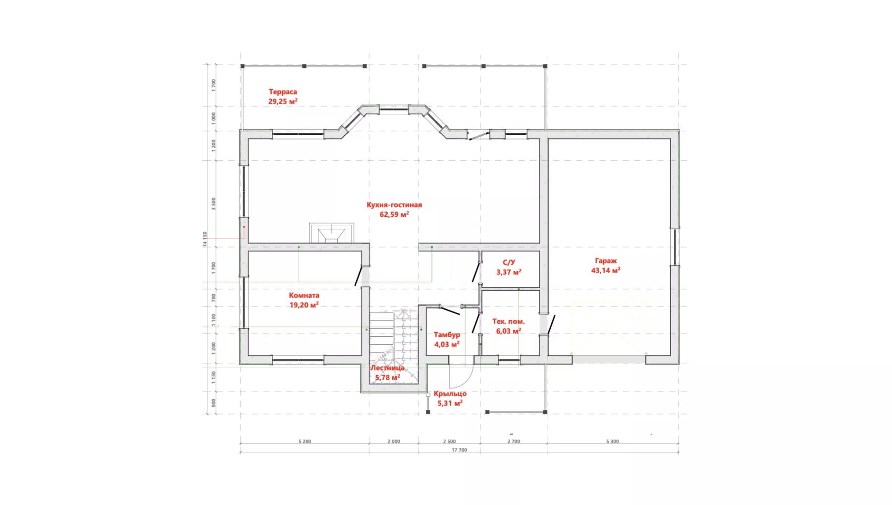
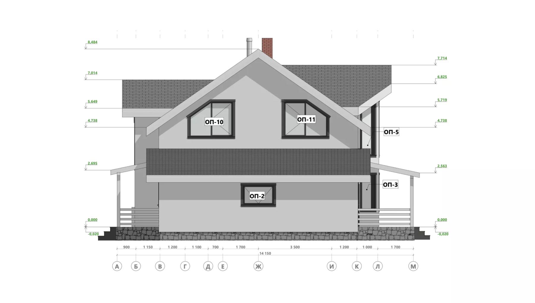
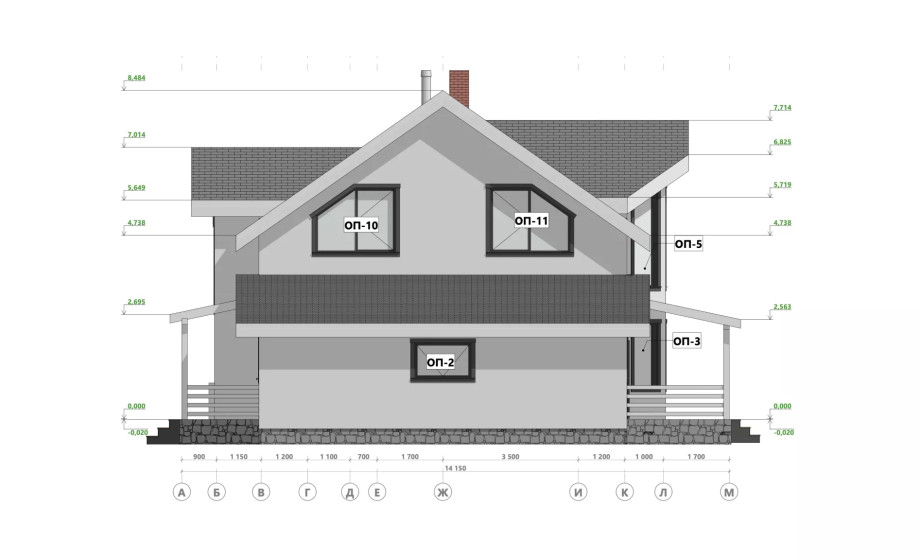
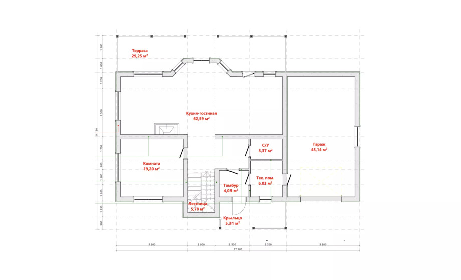
- Проект двухэтажного дома с гаражом из газобетона 22ЕК17.00
Проект двухэтажного дома с гаражом из газобетона 22ЕК17.00
Характеристики
Размер дома:
17.7 x 14.15 м
Тип фундамента:
Плита
Этажи:
2
Спальни:
4
Санузлы:
2
Наличие второго света:
Нет
Объем пиломатериала для силового каркаса:
110 м3
Сечение стоек наружных стен каркаса:
н/п
Шаг стоек наружных стен каркаса:
н/п
Снеговая/Ветровая нагрузка:
III-II
Наши преимущества
Мы строим дома под ключ и берем на себя
полный комплекс строительных услуг
полный комплекс строительных услуг

Создаем проект дома, либо выбираете из готовых

Проводим геодезию участка

Возводим фундамент

Возводим стены и перекрытия

Кровельные работы

Фасадные работы

Инженерные работы

Получистовая отделка

Чистовая отделка
Если вы точно знаете, как должен
выглядеть ваш дом, мы знаем,
как его построить!
выглядеть ваш дом, мы знаем,
как его построить!
Наши архитекторы воплотят в жизнь любые ваши
идеи по проектированию зданий и обустройству
участка. Мы создадим для вас настоящий дом
для жизни.
идеи по проектированию зданий и обустройству
участка. Мы создадим для вас настоящий дом
для жизни.